Hacemos edificios
Nuestros servicios
Inmobiliaria Dambolena
Edificio de oficinas estratégicamente ubicado en Colectora Norte Acceso Oeste y esquina Lobos, altura Paso del Rey, Moreno, diseñado para brindar funcionalidad y confort en un entorno corporativo de primer nivel de fácil acceso. Con una superficie total de 500 m², cuenta con planta baja y subsuelo, además de primer y segundo piso, cada uno equipado con baño y cocina independiente. En el tercer piso hay una cafetería con vista panorámica que ofrece un espacio ideal para reuniones. La fachada del edificio está compuesta en su totalidad por paredes de vidrio de primer nivel, en el interior las divisiones cuentan con vidrio biselado (pulido brillante) y pisos de porcelanato de alta calidad.
- Colectora Norte Acceso Oeste y Lobos Paso del Rey, Buenos Aires Moreno.
- Cuenta con planta baja, primer segundo y en el tercer piso un café.
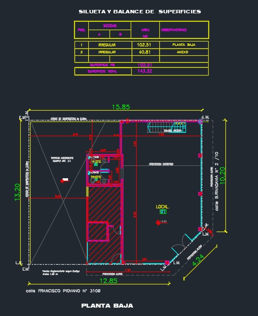
Av. Francisco Piovano y Rivadavia
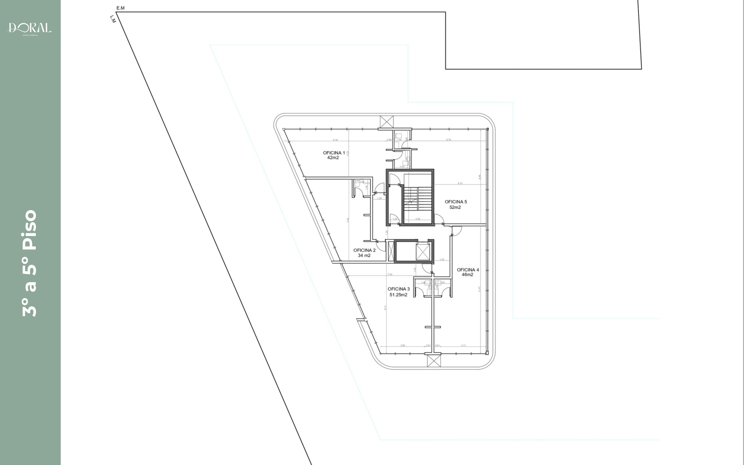
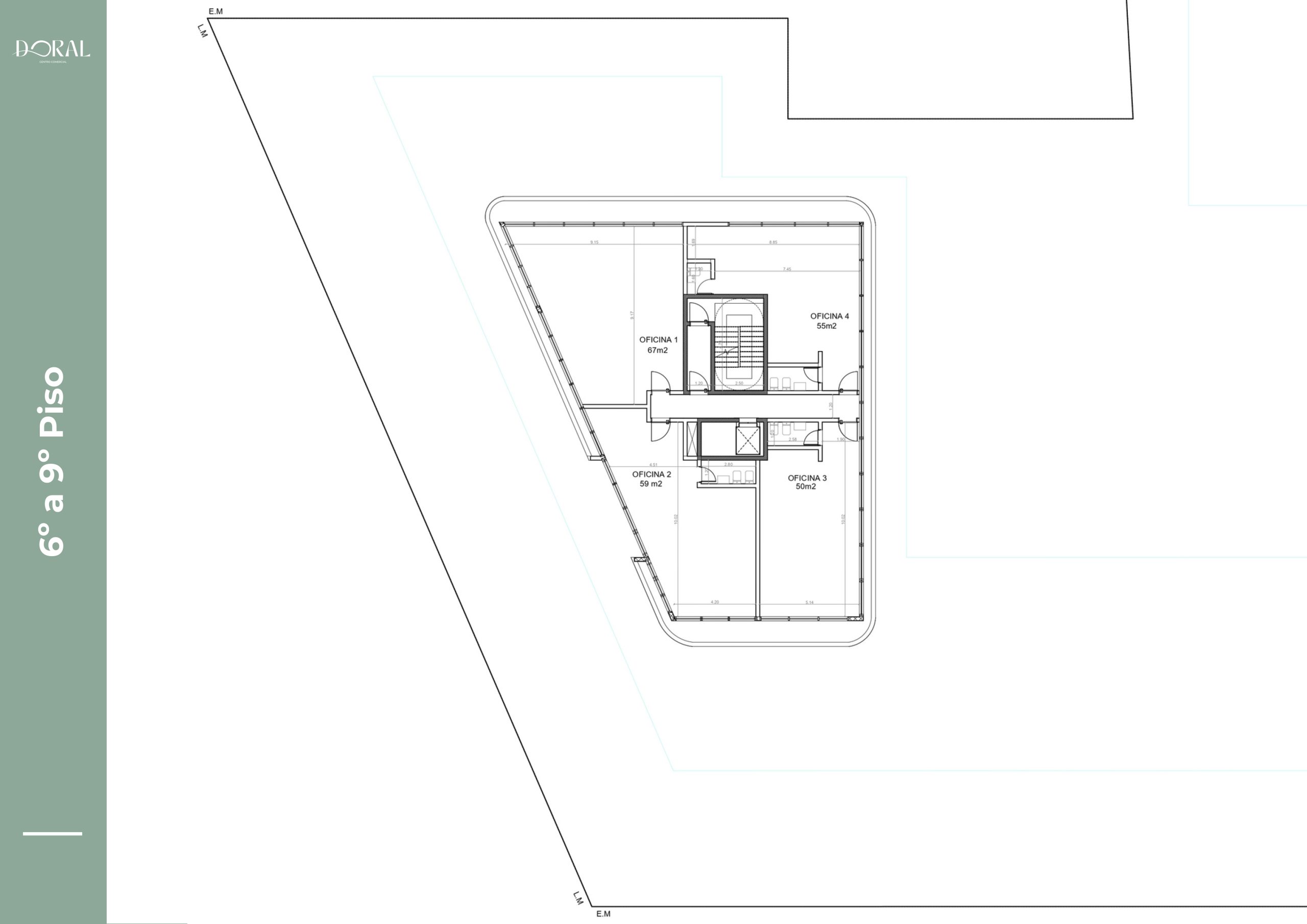
Edificio desarrollado en esquina sobre calles Francisco Piovano y Esquina Rivadavia, Moreno, próximos puntos de interés sobre centro comercial. Cuenta con una superficie total de 817,34 m². En planta baja, el proyecto integra un local comercial de 88,90 m², con depósito, área de servicio y toilette, acompañado de espacios semicubiertos y acceso independiente a los pisos superiores. El edificio cuenta con entrepiso técnico, y cuatro niveles tipo (1°, 2°, 3° y 4° piso), cada uno distribuido en cuatro oficinas independientes con excelente iluminación y ventilación natural, sanitarios en cada planta y circulación mediante caja de escalera y ascensor central. En el 5° piso, se desarrolla una planta completa destinada a administración, con áreas amplias y funcionales, además de acceso a la azotea técnica que alberga sala de máquinas. Posee opción a cocheras para 4 autos. El edificio está pensado para un uso corporativo y comercial integral, combinando espacios de atención al público en planta baja y oficinas.
- Sup. total: 817,34 mt2
- Pisos 1, 2, 3, 4 y 5to
- Local en planta baja
- Pisos 1 2 3 y 4 con 4 oficinas por piso
- Piso 5 completo como administración
Av. Francisco Piovano 3129
Edificio ubicado en el centro de la ciudad, en una zona de alto tránsito y excelente visibilidad comercial, cercana a bancos, oficinas públicas, comercios y transporte público. El edificio se desarrolla en planta baja y cinco pisos, con una planta baja destinada a recepción y atención al cliente. Dispone de 30 unidades funcionales distribuidas en 5 pisos (6 por planta), cada una con diseño moderno, iluminación natural y balcones al frente y contrafrente con barandas de vidrio templado. Cuenta con 6 cocheras privadas en el edificio. Las terminaciones incluyen cerramientos vidriados de alta calidad, optimizando la entrada de luz y generando espacios confortables y funcionales.
- Info a añadir
- Info a añadir
- Info a añadir
- Info a añadir
- Info a añadir
Próximos Proyectos
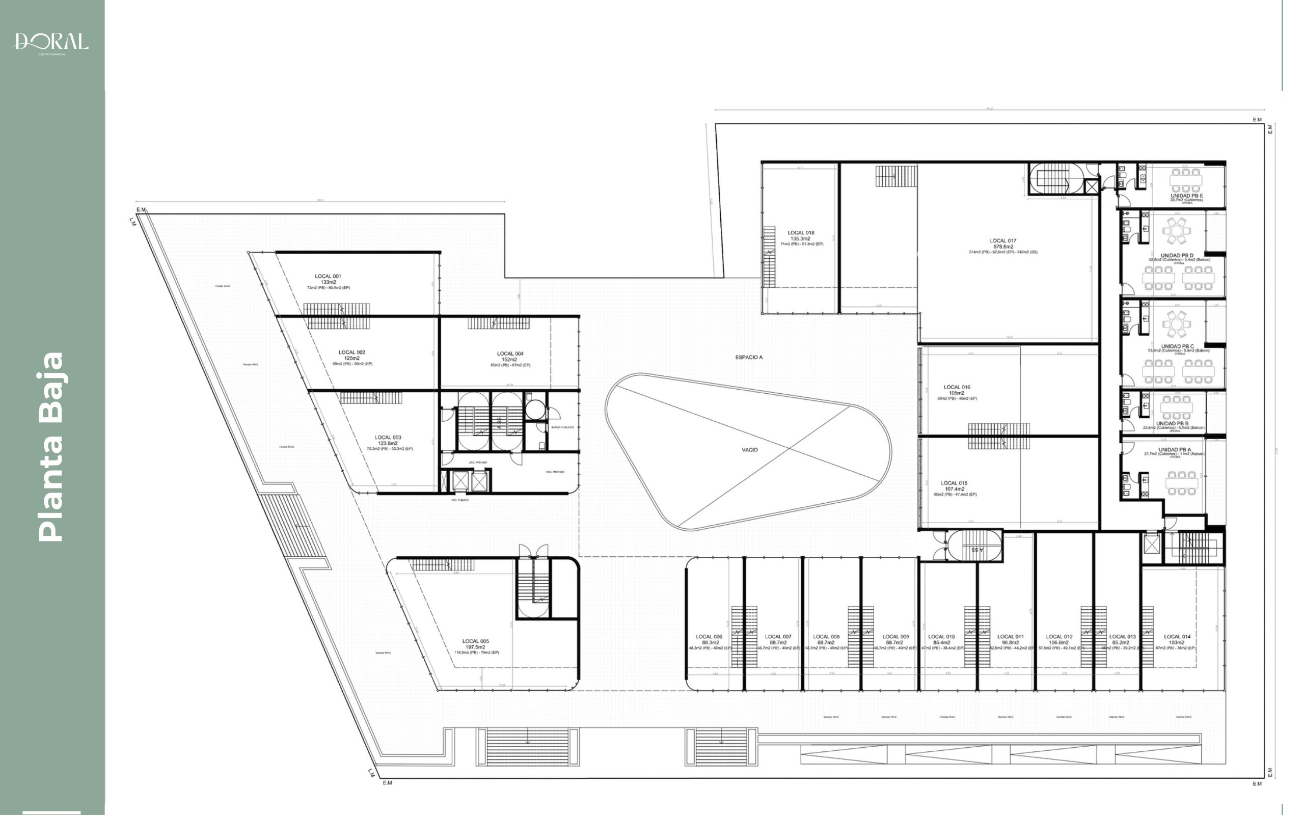
Doral Centro Comercial - Avenida Italia 4208
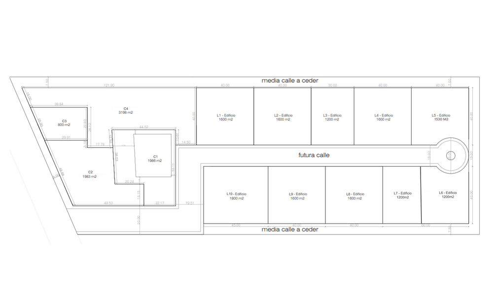
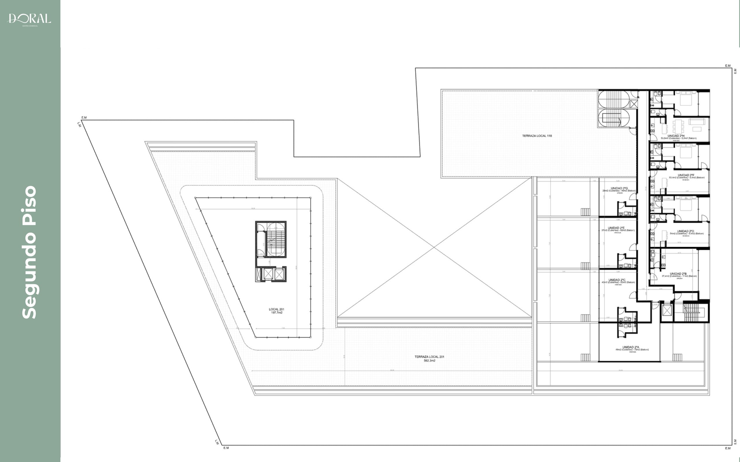
Ubicado en el corazón de Avenida Italia, Tigre, con una ubicación estratégica cercana a Nordelta el desarrollo de diseño moderno ofrece 92 unidades distribuidas en planta baja y nueve pisos: 39 locales comerciales y 53 departamentos/oficinas, todos con ventanales de piso a techo y espacios funcionales. Son 4 Lotes comerciales desde 800m2, 8 Macro Lotes desde 1200m2 con Proyecto de edificio residencial con amenities y cocheras emplazado en una fracción de 33.473m2.
Este edificio de departamentos se integra a un masterplan destacado, rodeado de otros edificios residenciales, y cuenta con SUM, piscina y 66 cocheras en subsuelo, además de acceso directo a un centro comercial propio.
- Doral Tigre es un proyecto de Complejo de Edificios en Avenida Italia 4208 - Benavinez - Tigre
- Superficie de 800m2
- Frente: 25m Fondo: 30m
- Cuenta con: 4 Lotes comerciales desde 800m2, 8 Macro Lotes desde 1200m2 con Proyecto de edificio residencial con amenities y cocheras emplazado en una fracción de 33.473m2.
- A 5' del Centro Comercial de Nordelta
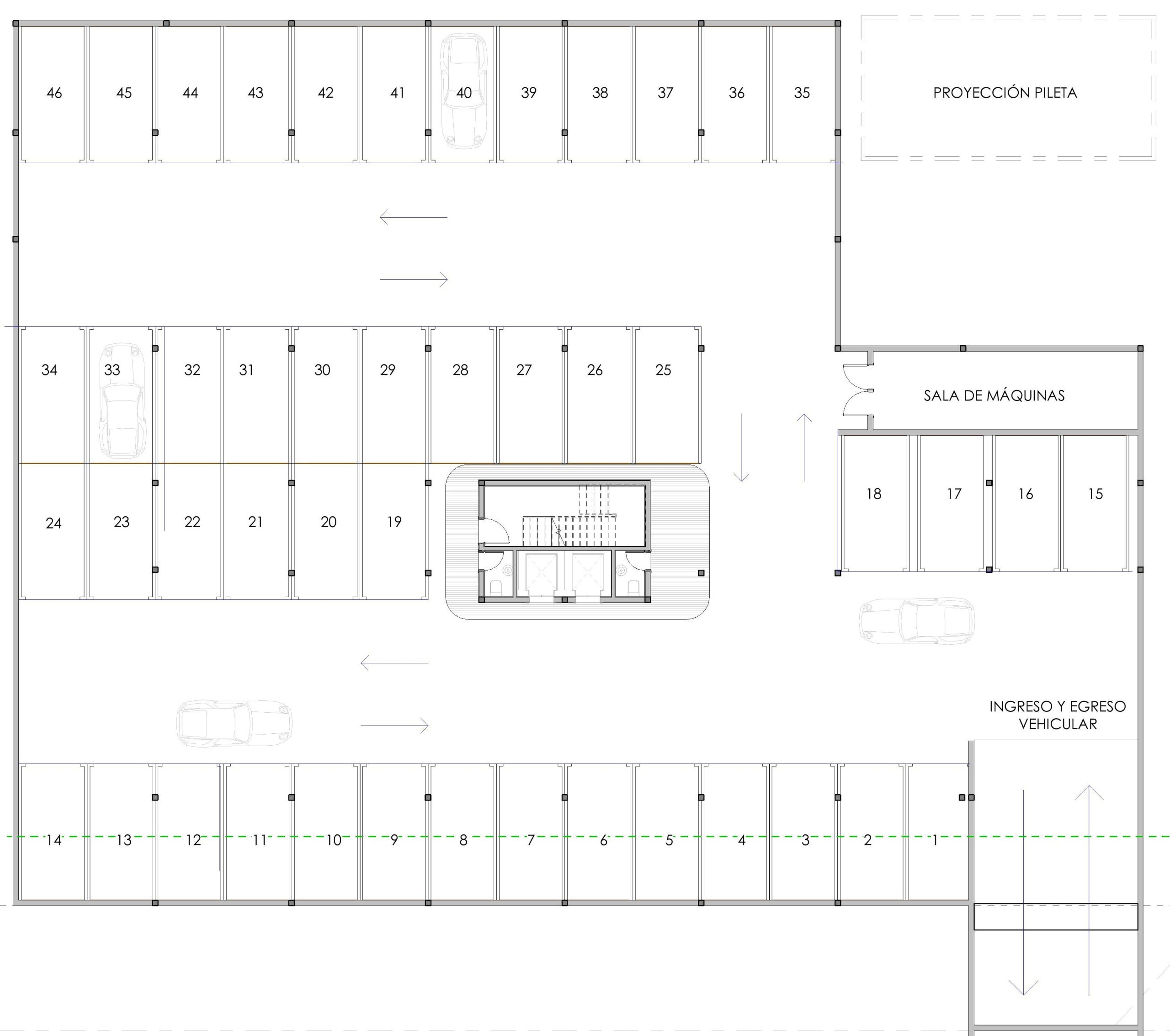
Doral Tigre VI
Doral Tigre es un desarrollo ubicado en Avenida Italia 4208, Benavídez, Tigre. Este proyecto incluye complejo de edificios con anteproyecto de local sobre una superficie: 800m2 frente: 25m fondo: 30m.
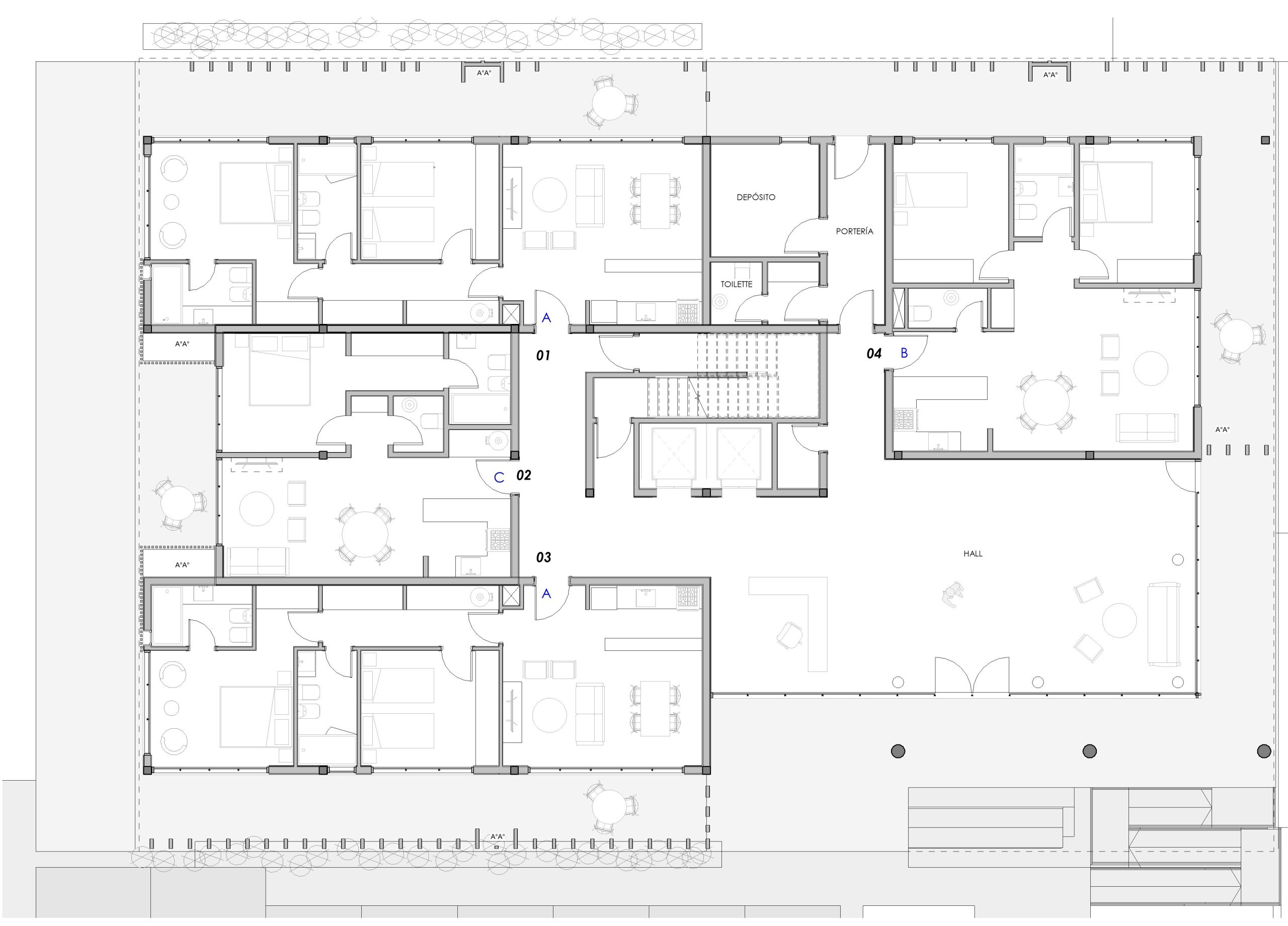
El edificio se desarolla en planta baja mas seis pisos, albergando un total de 40 unidades diseñadas para adaptarse a diversas necesidades: 27 unidades de dos dormitorios y 13 de un dormitorio, todas con amplios balcones terrazas. Los departamentos se caracterizan por su diseño funcional, lleno de luz natural por los ventanales de piso a techo y sus espacios interiores están pensados para brindar comodidad y calidad de vida. Cuenta con estacionamiento subterráneo de 46 cocheras numeradas, sala de máquinas y proyección de pileta en niveles superiores y en planta baja un amplio hall de acceso, portería, depósito y toilette, además de departamentos bien distribuidos.
- Doral Tigre es un proyecto de Complejo de Edificios en Avenida Italia 4208 - Benavinez - Tigre
- Superficie de 800m2
- Frente: 25m Fondo: 30m
- Cuenta con: 4 Lotes comerciales desde 800m2, 8 Macro Lotes desde 1200m2 con Proyecto de edificio residencial con amenities y cocheras emplazado en una fracción de 33.473m2.
- A 5' del Centro Comercial de Nordelta
Edificio Rivadavia
Edificio ubicado en el centro de la ciudad, en una zona de alto tránsito y excelente visibilidad comercial, cercana a bancos, oficinas públicas, comercios y transporte público. El edificio se desarrolla en planta baja y cinco pisos, con una planta baja destinada a recepción y atención al cliente. Dispone de 30 unidades funcionales distribuidas en 5 pisos (6 por planta), cada una con diseño moderno, iluminación natural y balcones al frente y contrafrente con barandas de vidrio templado. Cuenta con 6 cocheras privadas en el edificio. Las terminaciones incluyen cerramientos vidriados de alta calidad, optimizando la entrada de luz y generando espacios confortables y funcionales.
- Proyecto de edificio comercial para ser destinado a espacio de oficinas empresariales y comerciales con Planta Baja incluida.
- Superficie cubierta a construir 905,77 m2