Hacemos locales
Nuestros servicios
KM 41 Colectora Sur Acceso Oeste
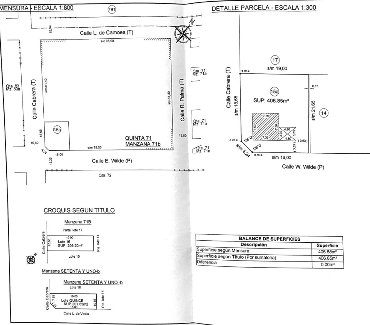
Dos locales comerciales ubicados sobre Colectora Sur del Acceso Oeste Km 41, calle Wilde, con superficies de 116,21 m² y 191,80 m². Ambos distribuidos en ambientes funcionales en planta baja y entrepiso, diseñados para adaptarse a diversos usos comerciales. Cada local incluye baño, cocina tipo kitchenette y cocheras tanto al frente como al contrafrente, con capacidad para 6 vehículos (3 en cada sector), facilitando el acceso y la comodidad de clientes y propietarios.
- Dos locales con destino comercial en la calle Colectora Acceso Oeste KM 41, Wilde.
- Sup Total 116,21 m2.
- Otro de Sup Total 191,80 m2.
- En Planta Baja cada uno.
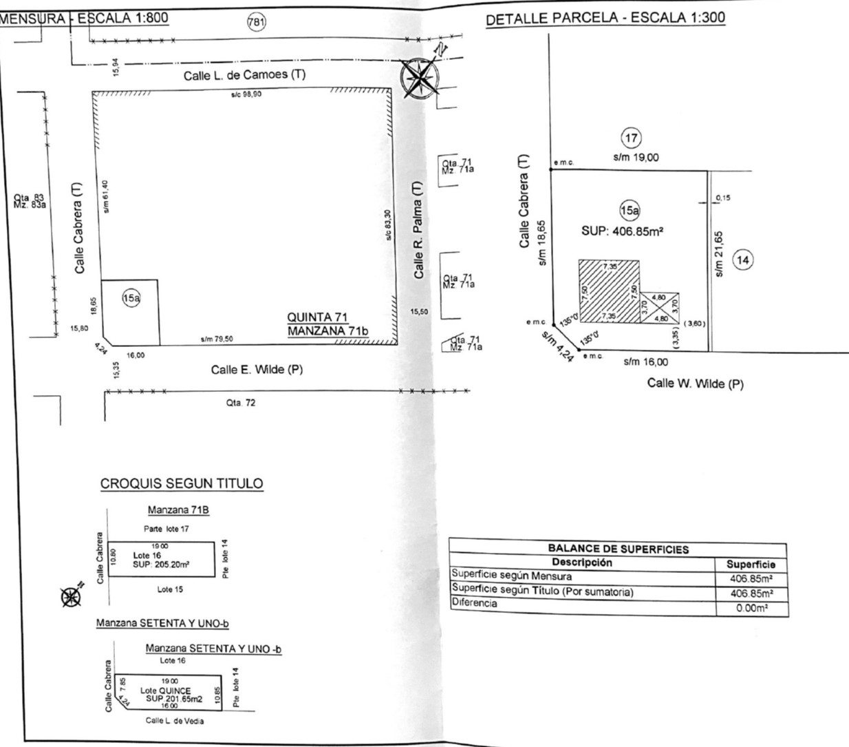
Wilde y Cabrera
- Construcción de locales comerciales en inmuebles propios, para su posterior locación o venta.
Locales comerciales desarrollados en propiedad exclusiva, ubicados en un terreno de 1.523,81 m² en la Provincia de Buenos Aires, diseñados para combinar funcionalidad, estética moderna y calidad constructiva. El proyecto incluye dos amplios locales de 403,98 m² y 510,30 m², con áreas de circulación y servicios integradas. La construcción se realiza bajo el sistema tradicional, con estructura independiente de hormigón armado, cerramientos de bloques, vigas reticuladas, fachada vidriada, cortinas metálicas y pisos de microcemento alisado, garantizando durabilidad y bajo mantenimiento.
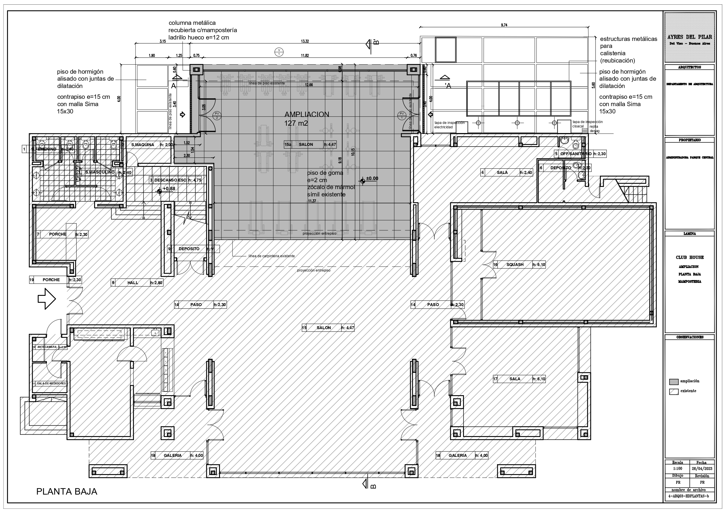
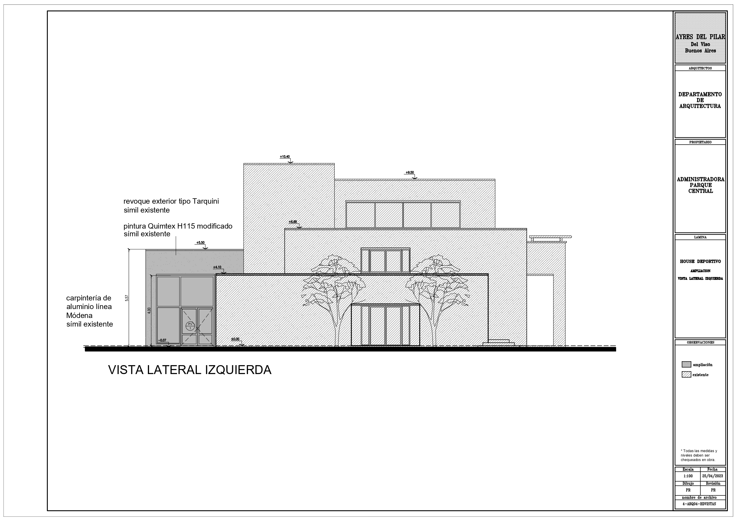
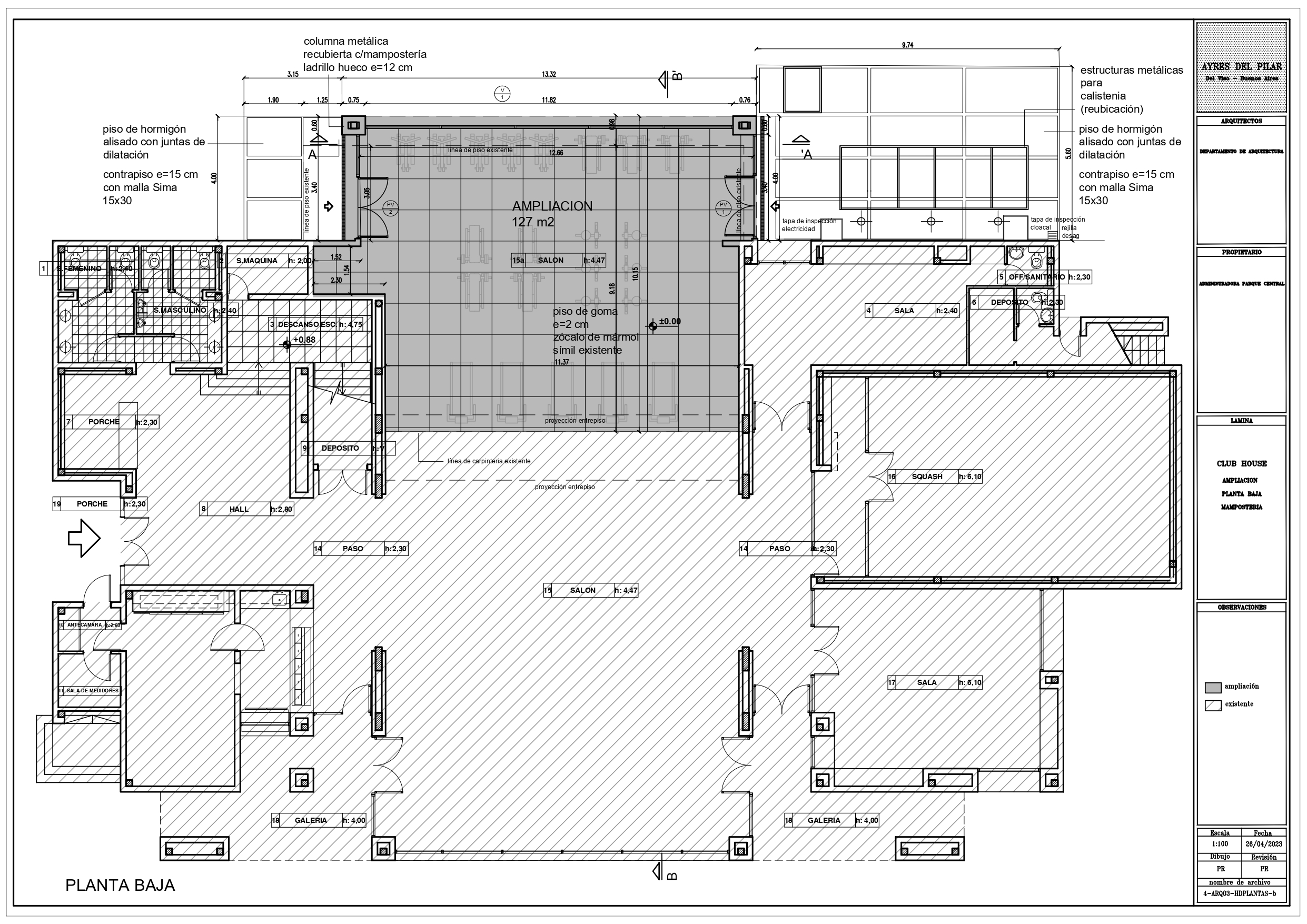
Ampliación House Deportivo
Ampliación de gimnasio con trabajos de hormigón armado, albañilería, estructuras metálicas e instalaciones sanitarias en la obra sobre superficie de 127 m², desarrollada con materiales de primera calidad y bajo estándares técnicos y constructivos. Ubicado en Barrio Cerrado Ayres de Pilar, en el Km 43,5 de Panamericana Ramal Pilar, localidad de Del Viso, Partido de Pilar.
- Se realiza servicio de Hormigón Armado, albañilería, estructuras metálicas e instalación sanitaria para la obra de ampliación del gimnasio.
- Ubicado en el Barrio Cerrado Ayres de Pilar sito en Panamericana Ramal Pilar.
- Km 43,500 de la Localidad de Del Viso, Partido de Pilar.
- Superficie de Ampliación: 127 m2
Avenida del Libertador 917
Local de 133 m² en terreno de 264 m², ubicado a 200 m de Acceso Oeste (Km 34) y 600 m de la estación Moreno. Construcción tradicional con estructura de hormigón armado, cerramientos de bloques, vigas reticuladas, fachada vidriada, cortinas metálicas y piso de microcemento alisado. Posibilidad de entrepiso y conexiones cloacales, pluviales, eléctricas, agua fría y gas de red.
- Construcción de locales comerciales en inmuebles propios, para su posterior locación o venta.
Gorriti
Desarrollo de locales comerciales en inmuebles propios, ubicados en un terreno de 1.523,81 m², compuesto por dos amplios locales de 403,98 m² y 510,30 m² respectivamente. La construcción se ejecuta bajo sistema tradicional, con estructura independiente de hormigón armado, cerramientos de bloques, vigas reticuladas, fachada vidriada, cortinas metálicas y pisos de microcemento alisado, asegurando calidad, estética moderna y durabilidad.
- Construcción de locales comerciales en inmuebles propios, para su posterior locación o venta.
¡Contactános!
Nuestros servicios
KM 41 Colectora Sur Acceso Oeste
- Dos locales con destino comercial en la calle Colectora Acceso Oeste KM 41, Wilde.
- Sup Total 116,21 m2.
- Otro de Sup Total 191,80 m2.
- En Planta Baja cada uno.
Dos locales comerciales ubicados sobre Colectora Sur del Acceso Oeste Km 41, calle Wilde, con superficies de 116,21 m² y 191,80 m². Ambos distribuidos en ambientes funcionales en planta baja y entrepiso, diseñados para adaptarse a diversos usos comerciales. Cada local incluye baño, cocina tipo kitchenette y cocheras tanto al frente como al contrafrente, con capacidad para 6 vehículos (3 en cada sector), facilitando el acceso y la comodidad de clientes y propietarios.
Ampliación House Deportivo
- Se realiza servicio de Hormigón Armado, albañilería, estructuras metálicas e instalación sanitaria para la obra de ampliación del gimnasio.
- Ubicado en el Barrio Cerrado Ayres de Pilar sito en Panamericana Ramal Pilar.
- Km 43,500 de la Localidad de Del Viso, Partido de Pilar.
- Superficie de Ampliación: 127 m2
Ampliación de gimnasio con trabajos de hormigón armado, albañilería, estructuras metálicas e instalaciones sanitarias en la obra sobre superficie de 127 m², desarrollada con materiales de primera calidad y bajo estándares técnicos y constructivos. Ubicado en Barrio Cerrado Ayres de Pilar, en el Km 43,5 de Panamericana Ramal Pilar, localidad de Del Viso, Partido de Pilar.
Próximos Proyectos
Avenida del Libertador 917
- Construcción de locales comerciales en inmuebles propios, para su posterior locación o venta.
Local de 133 m² en terreno de 264 m², ubicado a 200 m de Acceso Oeste (Km 34) y 600 m de la estación Moreno. Construcción tradicional con estructura de hormigón armado, cerramientos de bloques, vigas reticuladas, fachada vidriada, cortinas metálicas y piso de microcemento alisado. Posibilidad de entrepiso y conexiones cloacales, pluviales, eléctricas, agua fría y gas de red.
Gorriti
- Construcción de locales comerciales en inmuebles propios, para su posterior locación o venta.
Desarrollo de locales comerciales en inmuebles propios, ubicados en un terreno de 1.523,81 m², compuesto por dos amplios locales de 403,98 m² y 510,30 m² respectivamente. La construcción se ejecuta bajo sistema tradicional, con estructura independiente de hormigón armado, cerramientos de bloques, vigas reticuladas, fachada vidriada, cortinas metálicas y pisos de microcemento alisado, asegurando calidad, estética moderna y durabilidad.
Wilde y Cabrera
- Construcción de locales comerciales en inmuebles propios, para su posterior locación o venta.
Locales comerciales desarrollados en propiedad exclusiva, ubicados en un terreno de 1.523,81 m² en la Provincia de Buenos Aires, diseñados para combinar funcionalidad, estética moderna y calidad constructiva. El proyecto incluye dos amplios locales de 403,98 m² y 510,30 m², con áreas de circulación y servicios integradas. La construcción se realiza bajo el sistema tradicional, con estructura independiente de hormigón armado, cerramientos de bloques, vigas reticuladas, fachada vidriada, cortinas metálicas y pisos de microcemento alisado, garantizando durabilidad y bajo mantenimiento.